SKLN 逆流式冷卻器 瀏覽量:6962 所屬類別:冷卻器系列
- 采用滑閥式復式排料機構,運行平穩(wěn),可靠,殘留小
- 能耗低,操作簡便
- 冷卻后成品溫度不高于室溫3-5℃
- 適合于顆粒物料的冷卻
上一篇:
SKLB4 擺式冷卻器
下一篇:
暫無
詳細描述
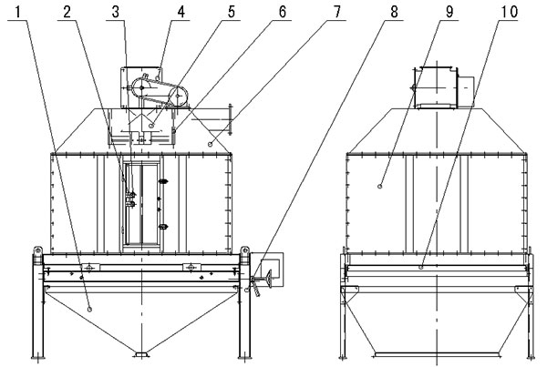
逆流式冷卻器主要結構:逆流式冷卻器的結構主要由旋轉閉風喂料器、出風頂蓋、菱錐形散料器、冷卻箱體、上下料位器、減速剎車電機、偏心傳動滑閥式排料機構、固定框調(diào)整裝置、集料斗、機架及吸風系統(tǒng)等組成。其工作過程是從制粒機中出來的高溫高濕度顆粒料,通過旋轉閉風喂料器,經(jīng)菱錐形散料器均勻地堆放在冷卻箱體中,冷風從冷卻箱體下面滑閥式排料機構底部與集料斗上部空隙中全方位進入冷卻器,并垂直穿過料層與濕熱顆粒進行熱交換,后經(jīng)吸風系統(tǒng)吸出,從而使顆粒料得以冷卻。冷卻時間由上下料位器的位置來控制,當顆粒料層達到上料位高度時,電機接通開始排料,當顆粒料層低于下料位高度時電機停轉,停止排料。電機停轉后,滑閥式排料機構中活動框與固定框之間的相對位置由行程開關通過剎車電機來控制,這樣能保證停止排料后不漏料?;y式排料機構安裝在箱體底部,由減速剎車電機通過偏心機構使活動框作往復運動,改變活動框與固定框之間的相對位置,使顆粒料排出箱體,最后由集料斗集中排出機外。
物料從上向下移動,而氣流由冷卻箱體底部進入,從頂部出風口排出后經(jīng)風管、集塵器最后通過風機排出。


